Visiaca hojdačka VVZ-VH010
Visiaca reťazová hojdačka
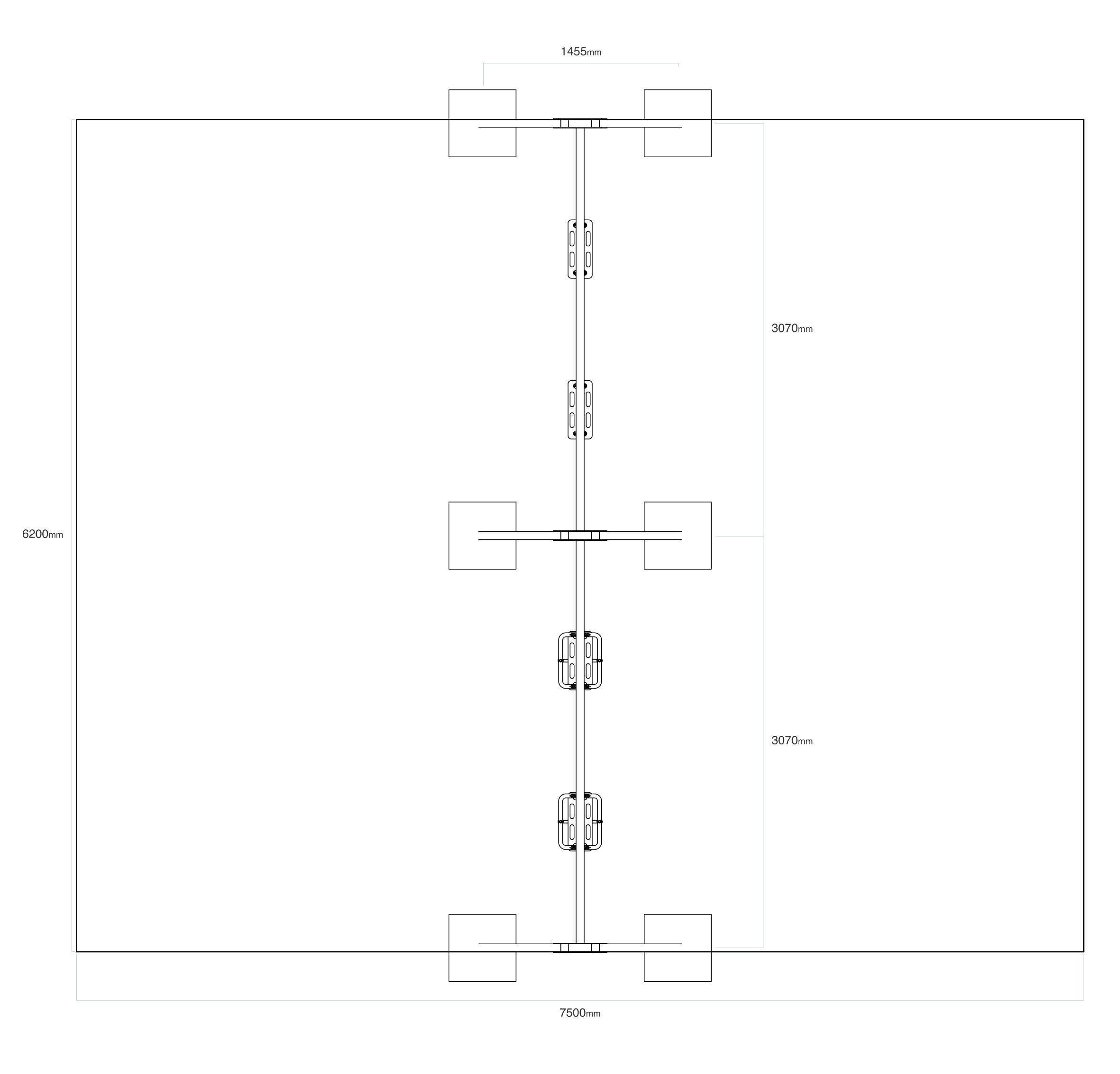
Visiaca štvorhojdačka so sedákmi v konfigurácii 2x klasický a 2x baby sedák, je vyrobená zo žiarovo zinkovanej ocele, ktorá je upravená práškovou vypaľovanou farbou. Spojovacie materiály sú nerezové a zakryté plastovými krytkami pre zvýšenie životnosti a bezpečnosti. Ako dopadovú plochu je vhodné použiť zatrávňovaciu rohož.

Hojdanie a húpanie sa
Áno dopravu zabezpečujeme po celom Slovensku.
Každý prvok v našej ponuke je dostupný „na kľúč“, no v prípade záujmu a šetrenia rozpočtu Vám vieme poskytnúť výkres základov a montáže aby ste si prvky vedeli osadiť aj sami.
Všetky naše prvky v ponuke prešli kontrolou Technickej inšpekcie a.s., podľa príslušnej normy, čo dokazujú aj certifikáty ktoré môžete nájsť na webe pri každom produkte. Hoci sú všetky naše výrobky schválené Technickou inšpekciou a.s., najprísnejšími kontrolórmi sú pre nás tí, ktorí sa na cestu za zábavou vydajú – a nie sú to len deti.
Naše produkty sú navrhnuté, vyvinuté, testované a vyrobené u nás v našej hale v Trenčíne.
Samozrejme, obchodníci sú tu pripravení pre Vás. Ktorý obchodník je pre Vašu obec nájdete na tejto mape.
Štandardný čas dodania je 4 až 6 týždňov od zadania objednávky.
































.png&w=200&h=200)















