Oceľový Gymcenter VVZ-GYM006
Oceľový gymcenter
Oceľový gymcenter - kváder zložený z ôsmich segmentov - 2x lezecká stena s úchytmi, 3x lezecká lanová sieť, dlhá rebrina, lanový rebrík a laná s balančnými “taniermi“. Herný prvok je vyrobený zo žiarovo zinkovanej ocele s kvalitnou povrchovou úpravou, spoje sú nerezové a zakryté plastovými krytkami pre zvýšenie bezpečnosti a životnosti spojov. Laná sú vyrobené z polyesterových vlákien, ktoré sú vinuté okolo stredu. Táto konštrukcia lana zvyšuje jeho pevnosť a odolnosť proti mechanickému namáhaniu. Samotný polyester má veľa kladných vlastností. Je odolný voči mikroorganizmom, poveternostným vplyvom, rýchlo schne po daždi, je stálofarebný a vyznačuje sa vysokou pevnosťou. Lanový gymcenter VVZ-GYM006 je certifikovaný podľa normy STN EN 1176.
ŠPECIFIKÁCIA:
Oceľový Gymcenter VVZ-GYM006 je certifikovaný podľa STN EN 1176
Veková kategória: 3- 14 rokov
Kapacita: 8 osôb
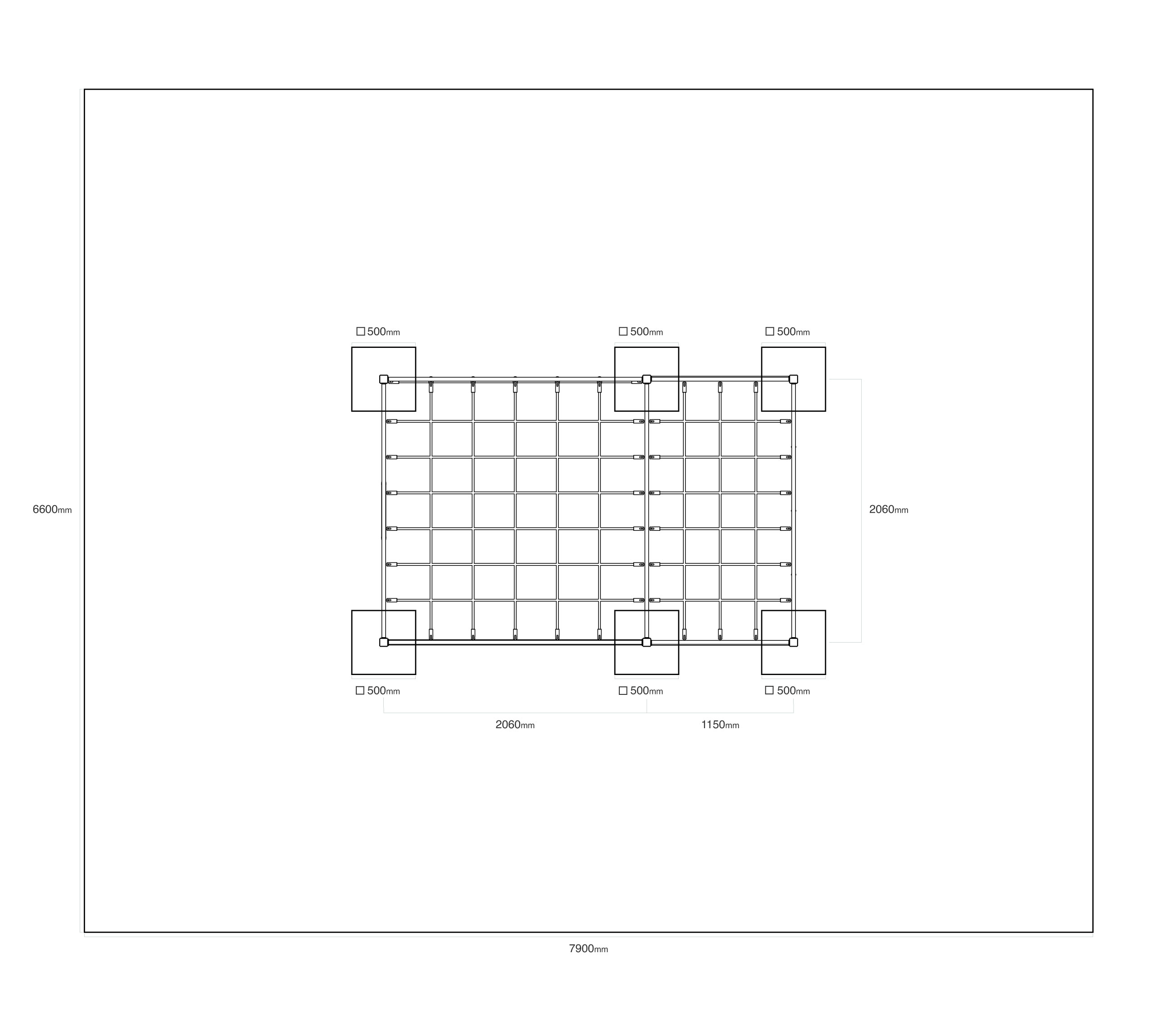
Rozmery prvku: 3,3 x 2,1 x 2,1 m
Výška voľného pádu: do 2,0 metrov, nutnosť dopadovej plochy. Ako dopadovú plochu je vhodné použiť zatrávňovaciu rohož.
Dopadová plocha: 7,9 x 6,6 m (v zmysle STN EN 1177)
Materiál: Žiarovo zinkovaná oceľ, polyesterové laná, HPL materiál, HDPE materiál, nerezový spojovací materiál

HPL - Vysokotlakový laminát

Lezenie a šplhanie
Áno dopravu zabezpečujeme po celom Slovensku.
Každý prvok v našej ponuke je dostupný „na kľúč“, no v prípade záujmu a šetrenia rozpočtu Vám vieme poskytnúť výkres základov a montáže aby ste si prvky vedeli osadiť aj sami.
Všetky naše prvky v ponuke prešli kontrolou Technickej inšpekcie a.s., podľa príslušnej normy, čo dokazujú aj certifikáty ktoré môžete nájsť na webe pri každom produkte. Hoci sú všetky naše výrobky schválené Technickou inšpekciou a.s., najprísnejšími kontrolórmi sú pre nás tí, ktorí sa na cestu za zábavou vydajú – a nie sú to len deti.
Naše produkty sú navrhnuté, vyvinuté, testované a vyrobené u nás v našej hale v Trenčíne.
Samozrejme, obchodníci sú tu pripravení pre Vás. Ktorý obchodník je pre Vašu obec nájdete na tejto mape.
Štandardný čas dodania je 4 až 6 týždňov od zadania objednávky.
































.png&w=200&h=200)















